An Elevated Vision for Coastal Living
Once-in-a-lifetime opportunity to build your dream home in one of the most sought after enclaves along LA’s Silicon Beach. 7300 Vista Del Mar has approved plans to build a masterpiece home. Designed by Woods + Dangaran, recently named to Architectural Digest’s AD100 2025. This modern coastal residence is Ready to-Issue after four years of meticulous approvals.

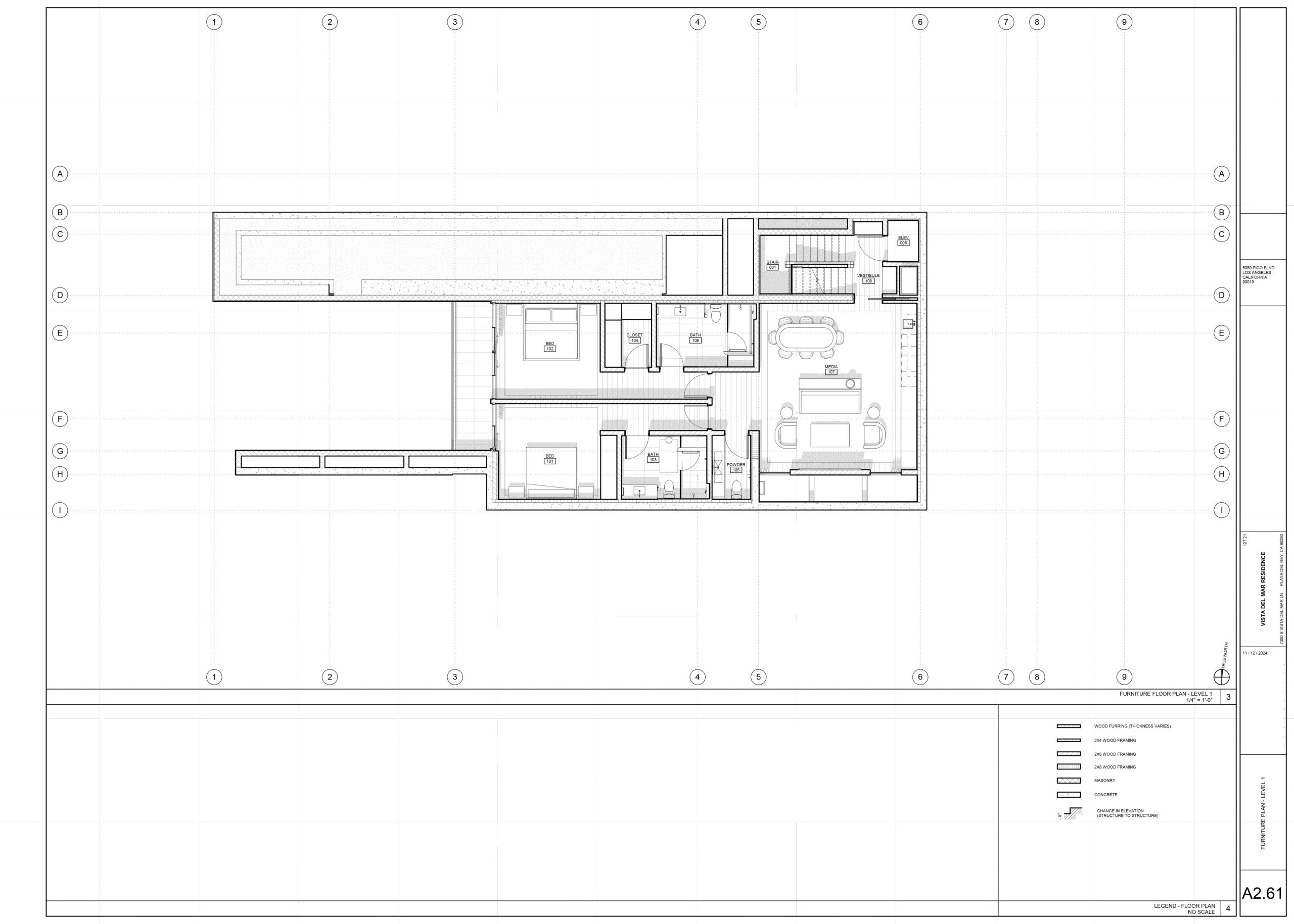
4 Bedrooms
+ 1 Private Office
6 Parking Spaces
(4 Covered 2 Uncovered)
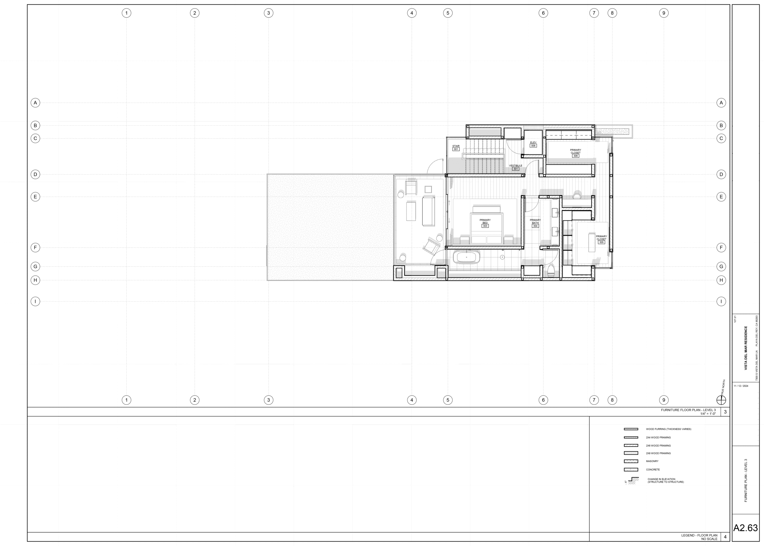
Signature primary suite with open-sky deck
7 baths
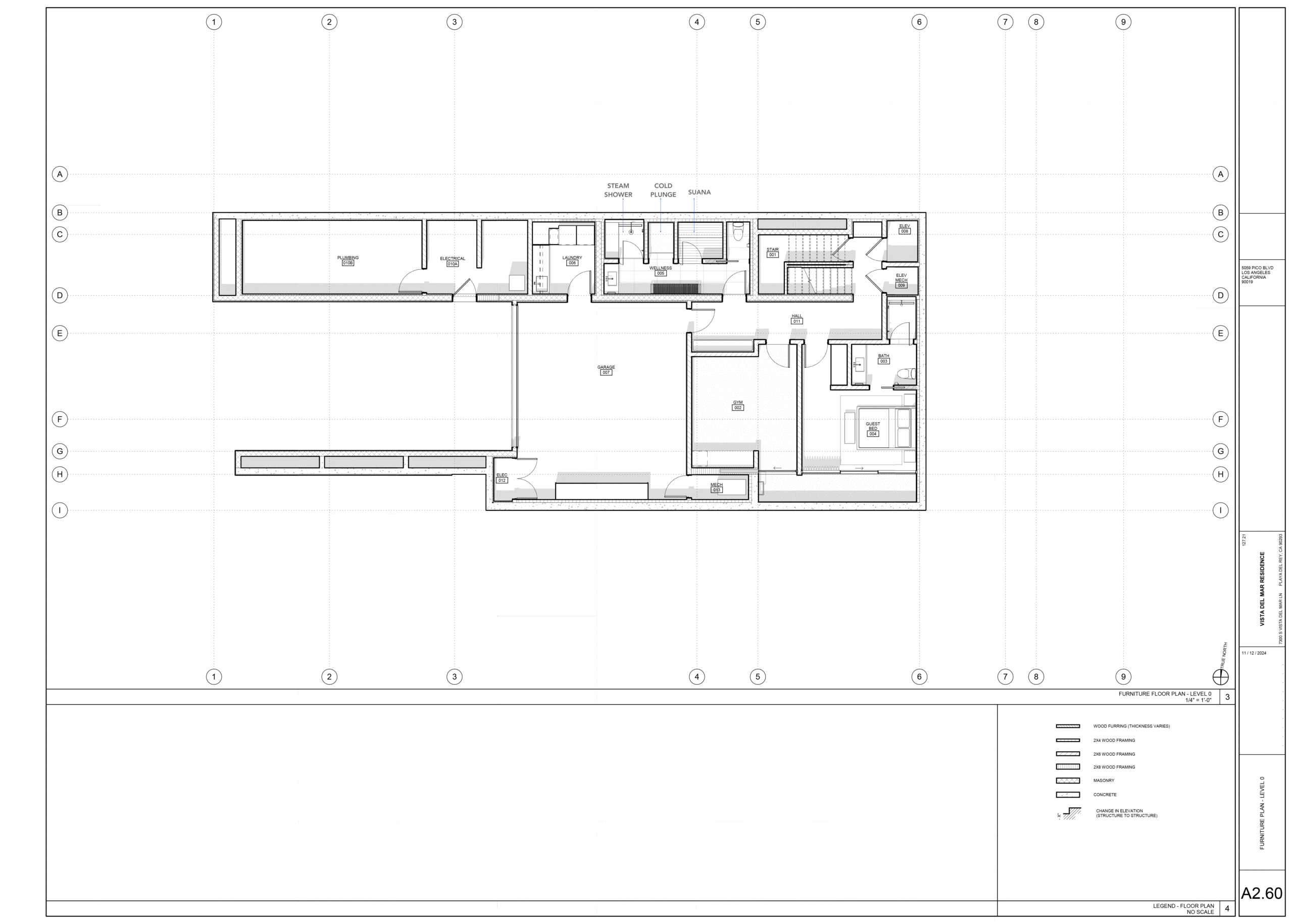
+1 Wellness Center
Wellness Center with Spa,
Sauna, Cold Plunge,Gym
6000 Sq.Ft. Living Space / 6400 Sq.Ft. Lot (Approx)


Immersive Living
by the Sea
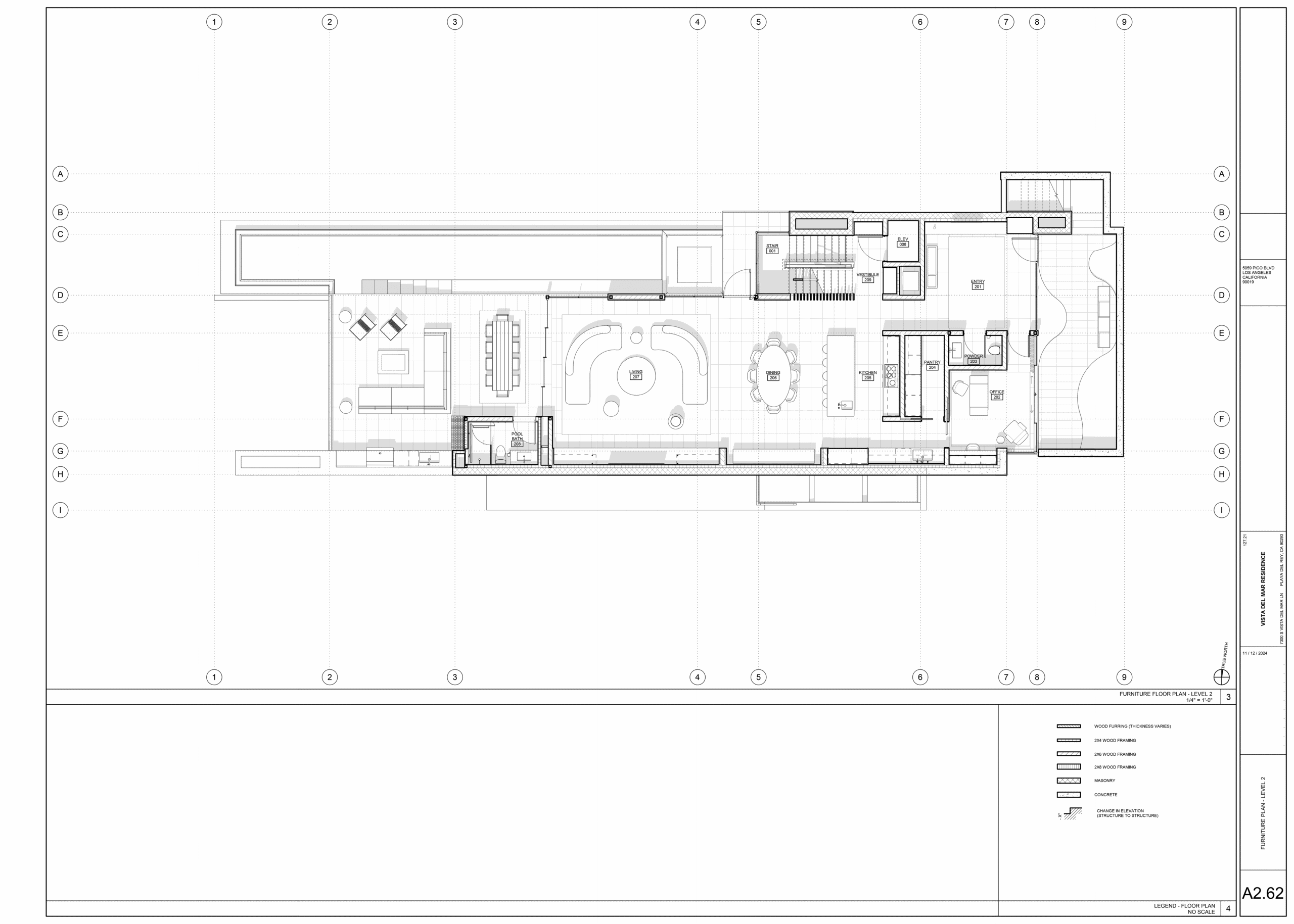
The program unfolds across four levels: a private wellness center and guest suite at entry, ocean-facing bedrooms on the mid-level, and a main living floor anchored by an elegant lap pool that channels calm energy outward to the horizon.
Above it all, the primary suite opens to an expansive sky deck, framing sun, surf, and stars in uninterrupted sequence.


- Once-in-a-lifetime opportunity to build your dream home in one of the most sought after enclaves along LA’s Silicon Beach
- 7300 Vista Del Mar has approved plans to build a masterpiece home.
- Designed by Woods + Dangaran, recently named to Architectural Digest’s AD100 2025.
- This modern coastal residence is Ready to-Issue after four years of meticulous approvals.



